Axonometria a popis projektu
Mestské kultúrne centrum v meste Hlohovec už roky chátra. Keďže však ide o nehnuteľnosť s obrovským potenciálom obklopenú jedinečným prostredím, bola by škoda nechať tento kultúrny dom chátrať aj naďalej. Veríme, že sa nám podarilo nájsť v spolupráci s ateliérom ASPACE, čo najlepšie možné riešenie obnovy.
Kultúrny dom v Hlohovci bol postavený v 70. až 80. rokoch minulého storočia. Dnes je objekt zavretý, poškodený vandalizmom a opotrebením. Zanedbaná údržba sa v súčasnosti naplno prejavuje, a preto sme navrhli štúdiu, ktorá by zodpovedala súčasným funkčným požiadavkám s ohľadom na dizajn, a ktorá by toto Mestské kultúrne centrum ukázala v lepšom svetle.
Objekt pozostáva zo suterénu, prízemia a poschodia. V interiéri sa stále nachádzajú unikátne diela Akad.soch. Jozefa Sušienku, ktoré plánujeme zachovať vzhľadom na ich kultúrnu hodnotu. Tieto diela nájdeme aj v exteriéri, konkrétne keramické komíny vzduchotechniky.
V suteréne sa nachádza multifunkčná sála pre 600 ľudí. Vďaka dostatočnému priestoru sa má viacero využití: divadlo, koncert, výstava, konferencia či krízové ubytovanie a je tu tiež priestor pre hlohoveckú televíziu. Pri tvorbe štúdie sme sa snažili zapracovať všetky požiadavky tak, aby boli možné všetky možnosti k dispozícií v čo najkratšom čase.
Súčasťou suterénu je okrem 650m2 sály aj technicko-hospodárske zázemie, priestory Televízie Hlohovec a zázemie sály ako šatne prípadne cattering, ktoré môžu využívať účinkujúci. Vďaka inteligentnému rozostaveniu miestností kultúrny dom pojme dostatok ľudí na rôzne udalosti.
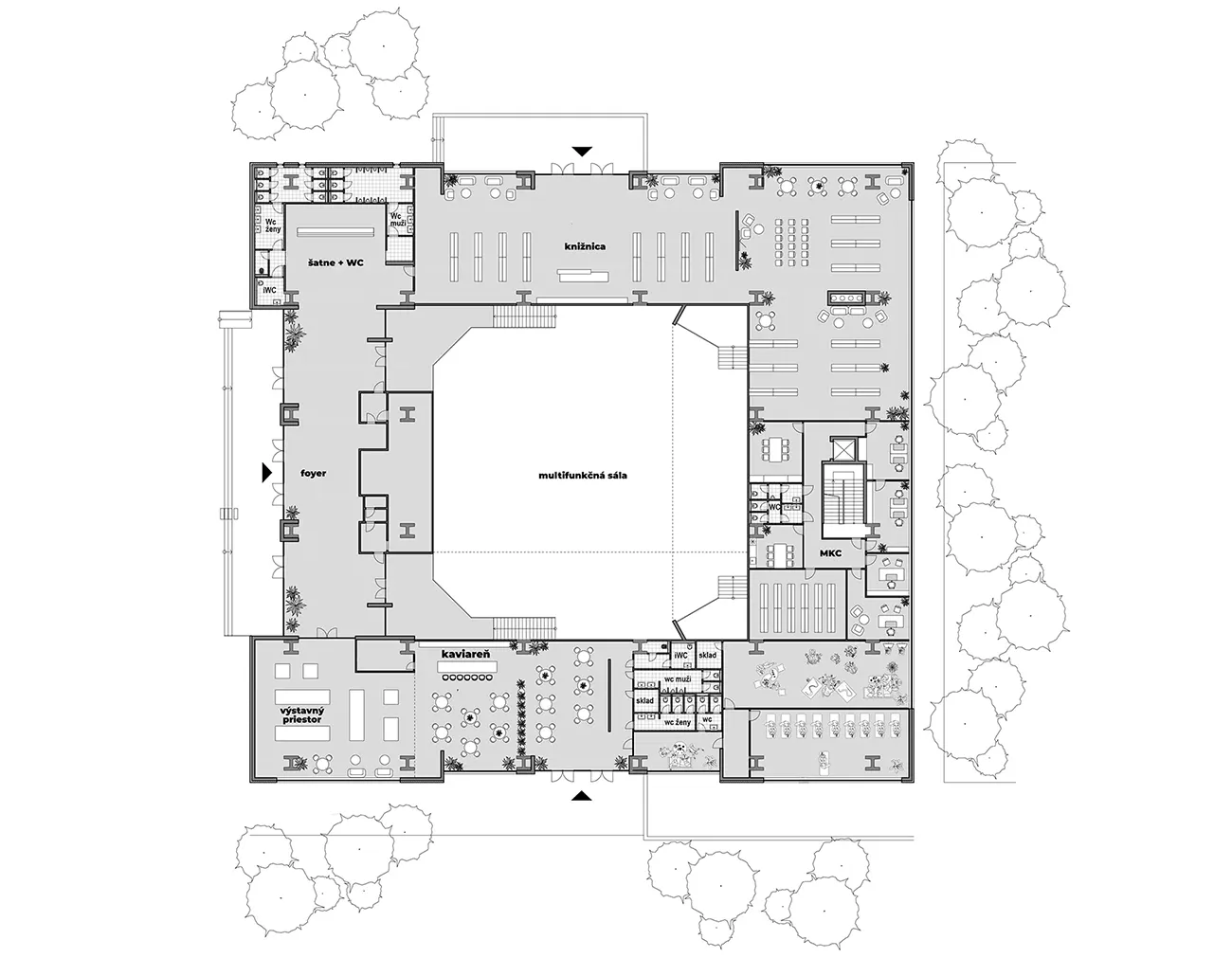
Prízemie je so suterénom spojené schodmi a výťahom. Toto poskytuje ešte viac možností. V štúdii sme navrhli priestory pre Mestské kultúrne centrum a Mestskú knižnicu Hlohovec, výstavný priestor, ale aj priestory pre voľnočasové aktivity či kaviareň.
Chýbať nebudú ani toalety, šatne, priestor na predaj lístkov či priestranné foyer. Toto nadzemné podlažie teda môže slúžiť nielen na oddych vo všeobecnosti, ale aj ako miesto stretnutí a konverzácií v priebehu výstav, meetingov či v prestávkach počas divadelných alebo koncertných predstavení.
Kultúrny dom v Hlohovci disponuje aj poschodím. Celkové priestory druhého nadzemného podlažia ponúkajú 278,1m2, ktoré je možné využívať na prenájom, čím majiteľovi prinesú finančné príjmy. Nové priestory budú navyše lákavé pre mnohých podnikateľov.
Exteriér potrebuje takisto rozsiahlu rekonštrukciu. Navrhli sme moderné architektonické riešenie, ktoré vytvorí nielen príťažlivý vzhľad objektu, ale poskytne ľuďom aj dostatok miesta na príjemné trávenie času. V návrhu pracujeme s citlivým ohľadom na pôvodnú architektúru a s využitím nadčasového diela tvoreného keramickými tvarovkami od p.Akad.soch. Jozefa Sušienku na fasáde.
V neposlednom rade náš návrh otvára dvere zeleni. Jej rozumná implementácia do exteriérového prostredia ešte viac skrášli celú nehnuteľnosť a umožní Mestskému kultúrnemu centru v Hlohovci žiariť oveľa viac ako v minulosti.
Očarila vás naša tvorba?
Túžite po výnimočnom projekte na mieru? Neváhajte, otvorte dvere kreativite a spolu premeníme vašu víziu bývania na nádhernú realitu.